八、QT7S、QT8S港機聯動控制臺
發布日期: 2025-2-20 本文被閱讀 316 次

概 述:
港機聯控制動臺為公司專為港口起重機(含冶金起重機、架橋起重機)而研發的新機型。分為兩大類。一類是QT7S港機普通型聯動控制臺,另一類是QT8S豪華型港機聯動控制臺。
由于港機含冶金駕駛室比較寬大,因此整體聯動臺的空間體積可以比輕型聯動臺做得稍大一些。另外,港機聯動臺和冶金聯動臺操作頻率高,吊裝任務重。有的港機裝卸機械一天24小時連續作業,因此對配置的主令控制器的堅固性和使用壽命要求高。而且基本上都是手柄自復位型。
執行標準:中華人民共和國機械行業標準JB/6748-2013
A、QT7S港機聯動控制臺
QT7S港機普通型聯動控制臺主要為港口中小吊機(門座起重機)而開發的產品。其機箱底座均為固定式,選配的座椅均為普通座椅。該型聯動臺基本都是配置<SJ>P-XKDF全金屬結構高端主令控制器。對于終端 客戶有要求也可配置<SJ>P-VNSO經典操縱桿。
一、型號及其含義:

二、配置的主令產品照:
三、客戶可選擇的座椅:

四、QT7S聯動臺各型號介紹:
(一)、QT7S1一體式港機聯動控制臺
1、QT7S1一體式港機聯動控制臺配置<SJ>P-XKDF全金屬結構主令控制器。座椅為普通座椅,客戶可選定。左右安裝側板用螺釘與底座固定在一起,側板上下調節量±25mm。

2、QT7S1外形圖:

3、安裝尺寸:

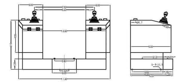
(二)QT7S2分體式聯動控制臺:
1、產品照片

2、 QT7S2外形尺寸:

3、安裝尺寸:

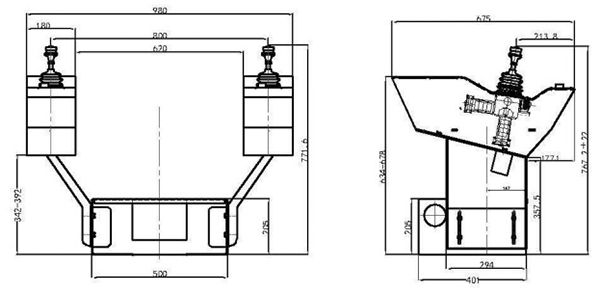
(三)、QT7S3一體式聯動控制臺:
1、QT7S3產品照片:

2、QT7S3外形尺寸圖:

3、安裝尺寸:

B、 QT8S港機聯動控制臺
QT8S豪華型港機聯動臺,是為大型港口高價值大中噸位門座起重機和岸橋起重機以及架橋機、門式起重機等研發的機型。本機型也可用于高價值重要場合的冶金起重機。其機型有固定式和旋轉式兩種類型。機箱內均配置<SJ>P-VNSO經典操縱桿。其配置的座椅為豪華座椅。
1、產品照片:

2、型號舉例:

3、外形尺寸:

4、安裝尺寸:

5、配置的經典操縱桿產品照:

6、配置的豪華座椅產品照:

| 上一條:七、QT6S工業橋機主令控制器型聯動控制臺 | 下一條:九、室內操作臺 |


郵編:272000